- Woonoppervlakte
- Circa 245 m²
- Perceeloppervlakte
- Circa 620 m²
- Bouwjaar
- Gebouwd in 1920
- Aantal kamers
- 8 kamers (7 slaapkamers)
Vraagprijs: € 590.000,-- k.k.
Aanvaarding: in overleg
Op een schitterende locatie in het heuvellandschap en op loop afstand van het historische centrum van Valkenburg gelegen ruime hoekwoning met aanbouw, aangebouwde bungalow en verscheidene bergingen en een overkapping op een perceel van 620 m2 eigen grond. De aangebouwde bungalow is ideaal te gebruiken als Mantelzorgwoning. De achtertuin is gelegen op het zonnige zuiden. De woning is gebouwd in 1930 en de bungalow in 1960.
De woningen zijn voorzien van kunststof kozijnen met dubbele beglazing en rolluiken. Beide woningen worden verwarmd door middel van twee Remeha Calenta HR combi c.v.-ketels (gehuurd bij Volta Limburg, bouwjaar respectievelijk 2011 en 2016). Daarnaast heeft de woning 10 zonnepanelen (eigendom, 2020). Winkels, scholen, sportaccommodaties, bossen en diverse verbindingswegen zijn in de korte omtrek te vinden. Deze woning moet u zeker komen bekijken!
INDELING:
Begane grond:
Hal/entree, kelder met omvormer, meterkast, L-vormige woonkamer met gashaard en een airco unit; kantoor met lichtkoepel, hal, badkamer met wastafelmeubel met dubbele kraan, design radiator en een douchecabine; hangtoilet met fonteintje, woon-eetkeuken met diverse inbouw apparatuur, te weten een oven, inductiekookplaat, afzuigkap, vaatwasser en een koelkast; bijkeuken met wasmachine aansluiting en c.v.-opstelling. Houten schuur met overkapping. Houten berging.
Aangebouwde bungalow:
Hal/entree, meterkast, woonkamer met schuifpui naar het zonnige terras en een zonnescherm, open keuken met diverse inbouw apparatuur, te weten een koelkast, oven, kookplaat en een afzuigkap; bijkeuken met wasmachine aansluiting en c.v.-opstelling; twee slaapkamers, badkamer met wastafelmeubel, toilet en een douchecabine. Stenen berging onder het terras. De aangebouwde bungalow heeft energielabel F.
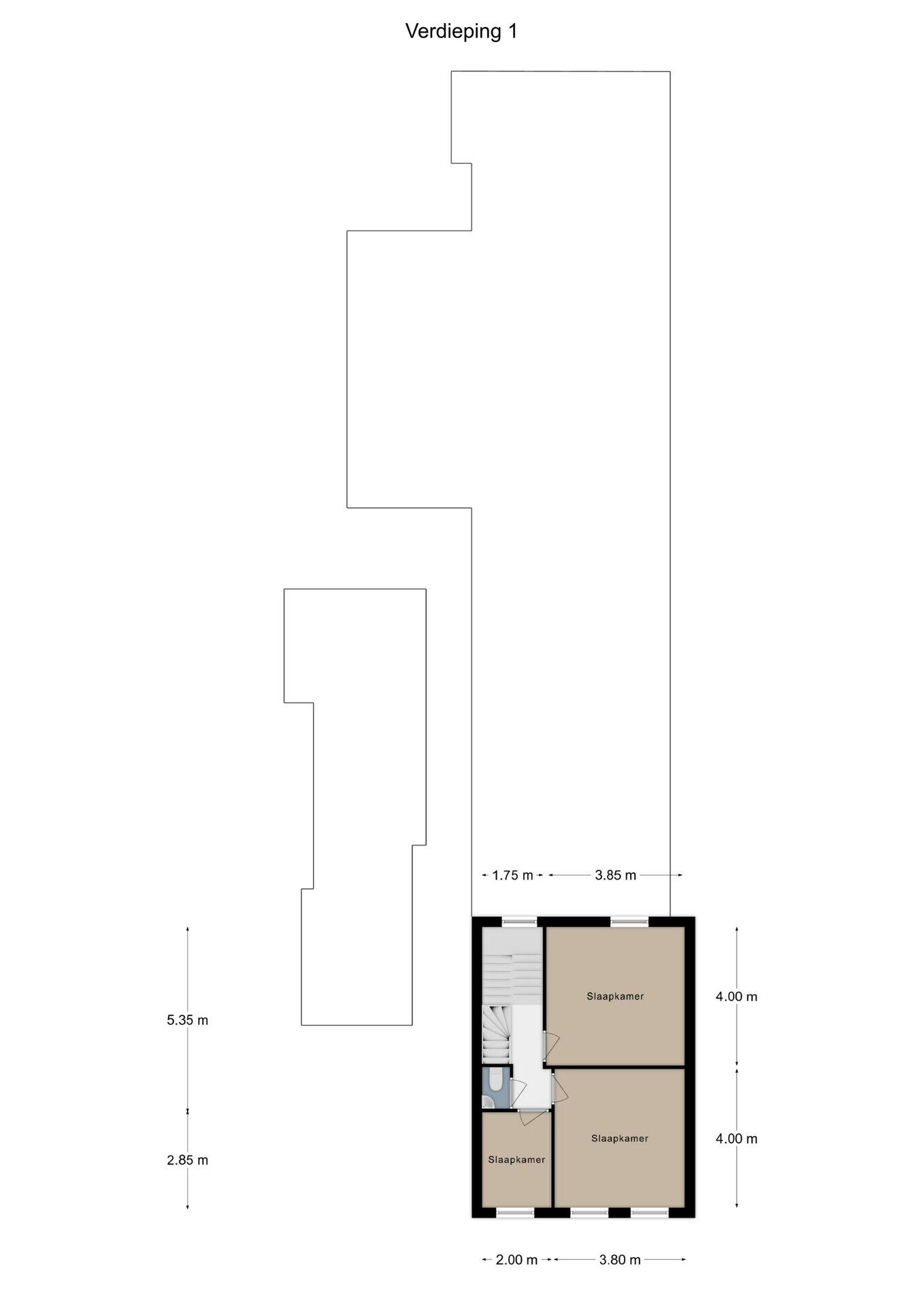
Eerste etage hoofdgebouw:
Overloop met bordes, 2e toilet met fonteintje, drie slaapkamers (waarvan 1 met een airco unit).
Tweede etage hoofdgebouw:
Overloop, twee slaapkamers, twee bergzolders.
Bijzonderheden:
• Aanvaarding in overleg.
• Het dak is voorzien van Unidec dakplaten.
Voor de exacte maten zie de bijgevoegde plattegronden in deze presentatie.
Deze woning wordt verkocht in collegiale samenwerking met Brandsma Vastgoed
Voor het maken van een afspraak kunt u contact opnemen met verkopend makelaar: Tom van Houtem (0620269830)
Volg ons op Facebook en/ of instagram om previews te zien van alle nieuwe aanbod.(Dichtbij Vastgoed)
Disclaimer;
* Alle maten zijn circa maten;
* Aan deze presentatie kunnen geen rechten worden ontleend;
* De waarborgsom/bankgarantie is 10% van de koopsom. De koper dient deze binnen 2 weken nadat het financieringsvoorbehoud is verlopen bij de desbetreffende notaris te deponeren;
* Koper is te allen tijde gerechtigd voor eigen rekening een bouwkundige keuring te (laten) verrichten dan wel andere adviseurs te raadplegen teneinde een goed inzicht te verkrijgen in de staat van onderhoud;
* Ter bescherming van de belangen van zowel koper als verkoper, wordt uitdrukkelijk gesteld dat een koopovereenkomst met betrekking tot deze onroerende zaak eerst dan tot stand komt nadat koper en verkoper de koopovereenkomst hebben getekend (“schriftelijkheidsvereiste”)
Overdracht
- Vraagprijs
- € 590.000 k.k.
- Status
- Beschikbaar
- Aanvaarding
- In overleg
Bouw
- Object type
- Eengezinswoning, 2-onder-1-kapwoning
- Soort bouw
- Bestaande bouw
- Bouwjaar
- 1920
Oppervlakte en inhoud
- Woonoppervlakte
- 245 m²
- Perceeloppervlakte
- 620 m²
- Inhoud
- 934 m³
- Overige inpandige ruimte
- 15 m²
- Externe bergruimte
- 60 m²
Indeling
- Aantal kamers
- 8 kamers (7 slaapkamers)
- Aantal woonlagen
- 4 woonlagen
Energie
- Energielabel
- D
- Energielabel registratie
- 05-08-2025
Buitenruimte
- Ligging
- Vrij uitzicht, open ligging, in bosrijke omgeving
- Balkon / dakterras
- Balkon aanwezig
- Tuin
- Achtertuin
- Afmetingen achtertuin
- 238 m² (28 meter diep en 8.5 meter breed)
- ligging tuin
- Gelegen op het zuiden en bereikbaar via achterom
Bergruimte
- Schuur / berging
- Aangebouwde stenen berging
- Voorzieningen
- Elektra
Energieverbruik in Valkenburg
Energielabel deze woning
Energielabel D
Publicatie energielabel: 05-08-2025
Stroomverbruik per jaar
(Gemiddelde twee onder een kap in Valkenburg)
Gasverbruik per jaar
(Gemiddelde twee onder een kap in Valkenburg)
* Cijfers zijn afkomstig van het CBS en bedoeld als indicatie en kunnen verschillen voor deze woning
Indicatie hypotheeklasten
Eigen inleg:
Spaargeld / overwaarde
Rente:
Laagste 10-jaars rente
Laagste 10-jaars rente
2,93% - Woonfonds Groen Woonge... - NHG
3,2% - Woonfonds Groen Woongen... - 80%
Laagste 20-jaars rente
3,19% - Centraal Beheer Groen... - NHG
3,57% - Argenta Groen Hypothee... - 80%
Laagste 30-jaars rente
3,34% - Centraal Beheer Groen... - NHG
3,74% - Argenta Groen Hypothee... - 80%
Hypotheek:
Bruto maandlasten: € 0 p/m
Netto maandlasten: € 0 p/m
Hoe berekenen we dit?
Het rentepercentage is gebaseerd op de laagste 10 jaars vaste rente voor één hypotheekdeel. De vermelde rente (3.2% zonder NHG) is gecontroleerd op 14-12-2025. Deze berekening is gebaseerd op een annuïteitenhypotheek die volledig wordt afgelost, waarbij de maandlasten gedurende de gehele looptijd gelijk blijven. De werkelijke rente en netto maandlasten kunnen variëren, afhankelijk van uw persoonlijke situatie en de hypotheekverstrekker. Raadpleeg een financieel adviseur voor een nauwkeurige berekening en advies. Aan deze berekening kunnen geen rechten worden ontleend; het dient enkel als indicatie.
Documentatie
Kadastrale kaart
Leefomgeving
Plattegronden PDF
BAG uittreksel
Brochure
WOZ waarderapport
Bezoek onze website
Bezichtiging
Bod uitbrengen
Waardebepaling
Zoekopdracht
Alles downloaden
Zonnegrenzen bekijken
Inwoners in Valkenburg
Cijfers voor postcodegebied 6301
- Totaal aantal inwoners
- 10455 inwoners
- Mannen
- 49%
- Vrouwen
- 51%
Inwoners in Valkenburg
Cijfers voor postcodegebied 6301
- tot 15 jaar
- 10%
- 15 tot 25 jaar
- 9%
- 25 tot 35 jaar
- 19%
- 45 tot 65 jaar
- 31%
- 65 en ouder
- 30%
Huishoudens in Valkenburg
Cijfers voor postcodegebied 6301
- Eenpersoons zonder kinderen
- 43%
- Meerpersoons zonder kinderen
- 32%
- Huishoudens zonder kinderen
- 75%
Huishoudens in Valkenburg
Cijfers voor postcodegebied 6301
- Huishoudens met één kind
- 6%
- Huishoudens met meerdere kinderen
- 19%
- Huishoudens met kinderen
- 25%
Woningen in Valkenburg
Cijfers voor postcodegebied 6301
- Woningen voor 1945
- 25%
- Woningen tussen 1945 en 1965
- 23%
- Woningen tussen 1965 en 1975
- 13%
- Woningen tussen 1975 en 1985
- 14%
- Woningen tussen 1985 en 1995
- 11%
Woningen in Valkenburg
Cijfers voor postcodegebied 6301
- Woningen tussen 1995 en 2005
- 6%
- Woningen tussen 2005 en 2015
- 6%
- Woningen na 2015
- 2%
- Huurwoningen
- 50%
- Koopwoningen
- 50%
Overige in Valkenburg
Cijfers voor postcodegebied 6301
- Gemiddelde WOZ waarde
- € 221.000,-
- Personen onder de 65 met uitkering
- 10%
Overige in Valkenburg
Cijfers voor postcodegebied 6301
- Adressen per km²
- 836
- Stedelijkheid (schaal 1 op 5)
- 40%
Korte feiten over Valkenburg
Valkenburg is een Nederlands dorp en een voormalige gemeente in Zuid-Holland. De gemeente Valkenburg is per 1 januari 2006 gefuseerd met de gemeenten Katwijk en Rijnsburg tot de nieuwe gemeente Katwijk met destijds ruim 60 duizend inwoners. In 2021 telde Valkenburg 6.275 inwoners. Hoewel de nieuwe naam gewoon "Valkenburg" is, met zo nodig "(Katwijk)" erachter, wordt de oude naam "Valkenburg (Zuid-Holland)" nog veel gebruikt om onderscheid te maken met de gemeente Valkenburg aan de Geul in Zuid-Limburg. De voormalige gemeente Valkenburg had een oppervlakte van 5,74 km² (waarvan 0,23 km² water). Binnen de gemeentegrenzen lagen geen andere kernen.
Dichtbij Vastgoed
Indien u vragen heeft of u wilt een bezichtiging inplannen, dan kunt u gebruik maken van het formulier hiernaast. Er zal daarna op korte termijn contact met u worden opgenomen.
Desteijnstraat 33
6367 DA, Voerendaal
045 - 820 0202 tom@dichtbijvastgoed.nl www.dichtbijvastgoed.nlContact opnemen
Vastgoed dichtbij
Dichtbij Vastgoed kenmerkt zich door haar persoonlijke en betrokken werkwijze. We kijken verder dan alleen de verkoop van je woning. In een oriënterend en vrijblijvend gesprek bepalen we samen wat je van ons kunt verwachten en wat de strategie is die bij jou en de verkoop van jouw woning past. Wij helpen je van begin tot eind aan een persoonlijk verhuistraject.
Wij vinden het achterhalen van sfeer en beleving waarheen je op zoek bent belangrijk. Gezamenlijk gaan wij graag met je actief op zoek naar de juiste match in de regio!
Wij werken in de volgende regio's, Makelaar Bocholtz, Makelaar Simpelveld, Makelaar Kerkrade, Makelaar Landgraaf, Makelaar Parkstad en Huis verkopen Heerlen, Makelaar Vaals, Makelaar Heuvelland.
Nieuwste reviews
-
Eynattenstraat 9
Tom heeft ons zeer goed begeleid bij der verkoop van onze woning. Korte lijntjes wat de communicatie erg prettig maakt. Alles is snel in gan...
-
Eynattenstraat 9
Tom heeft ons zeer goed begeleid bij der verkoop van onze woning. Korte lijntjes wat de communicatie erg prettig maakt. Alles is snel in gan...
-
Eynattenstraat 9
Tom heeft ons zeer goed begeleid bij der verkoop van onze woning. Korte lijntjes wat de communicatie erg prettig maakt. Alles is snel in gan...